The Timeless Appeal of New Classic Design in Saudi Villas
Saudi Arabia, a land of cultural richness and architectural heritage, is witnessing a growing trend toward neo-classical living spaces. Raxa Studio is at the forefront of this movement, infusing a new classic design ethos into Saudi villas that captures both the grandeur of antiquity and the comforts of modern living. With the perfect blend of form and functionality, our new classic design villas are the epitome of luxury, offering residents an experience steeped in aesthetic splendor and state-of-the-art amenities.
The Origin: How New Classic Design Meets Saudi Architecture
The new classic design has its roots in Western antiquity, drawing from architectural styles that span from ancient Greece to Renaissance Europe. Raxa Studio has embraced these influences and intertwined them with elements of traditional Saudi architecture. This creates a harmonious blend where intricate arabesques and Islamic patterns coexist with Corinthian columns and Renaissance motifs, resulting in a new classic design that pays tribute to both worlds.
The Design Philosophy: The Tenets of New Classic Design in Raxa Studio’s Villas
Raxa Studio’s design philosophy incorporates three fundamental aspects: aesthetic balance, luxurious detail, and modern functionality. We employ symmetrical layouts and balanced proportions, reminiscent of ancient architectural principles, while incorporating luxury materials such as marble, hand-crafted wood, and ornate metalwork to elevate the ambiance. Yet, the design is not solely anchored in the past; our villas come equipped with modern amenities like smart home technology, energy-efficient systems, and contemporary comforts, making our new classic design both timeless and timely.
Architectural Techniques: Mastery in New Classic Design Implementation
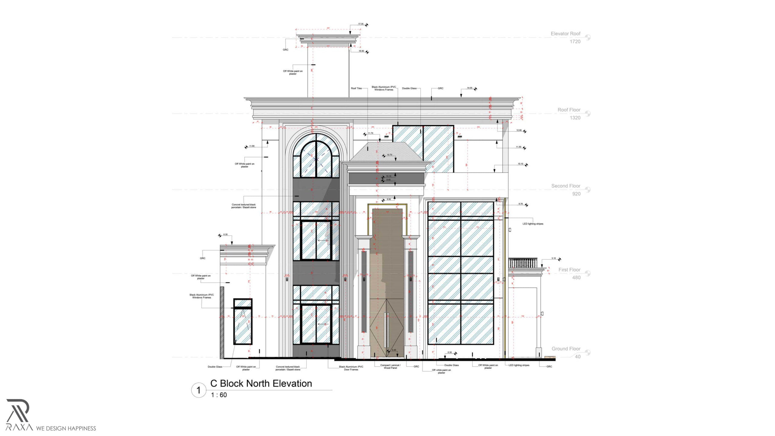
The realization of a new classic design is no small feat; it requires a high degree of craftsmanship and attention to detail. Our architects and designers use a plethora of advanced tools, from 3D modeling to Virtual Reality simulations, ensuring every detail is meticulously planned and executed. This approach allows us to accurately visualize and test the various elements of our new classic design, from the grand façade to the subtlest of interior accents, ensuring a flawless final product.
Sustainability: The New Classic Design’s Approach to Eco-Friendly Living
In a world increasingly conscious of its ecological footprint, sustainability is a core tenet of Raxa Studio’s design philosophy. Our new classic design villas are more than just visually stunning; they are also constructed with sustainability in mind. We use environmentally friendly materials and incorporate energy-efficient technologies, such as solar panels and waste management systems, to ensure that our luxurious living spaces are also kind to the Earth.
The Future: New Classic Design’s Role in Saudi Arabia’s Architectural Landscape
The marriage of new classic design with Saudi architecture heralds a future where the past and the present coalesce into a unique living experience. Raxa Studio is committed to pushing the boundaries of what a neo-classical villa can be, combining age-old elegance with modern functionality. As Saudi Arabia enters a new era of development and modernization, our design villas stand as a testament to the potential of combining historical richness with forward-thinking architectural innovation.
- Experience the power of 3D design as we at RaxaStudio bring the vision of a stunning designs to life. Immerse yourself in the realistic and immersive 3D visualizations, explore every detail of the design, and gain a comprehensive understanding of its spatial qualities. With our expertise, we transform ideas into compelling visual realities, enabling you to make informed decisions and create what exceeds your expectations.
To see more of our work, visit Our Projects page.
Follow us on our Social Media Accounts:
Instagram: Raxa Studio
Pintrest: Raxa Studio




































